Главная / Услуги / Строительство домов / Кирпичный дом (260 кв. м.)
Кирпичный дом (260 квадратных метров)
![]() |
![]() |
![]() |
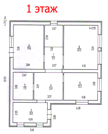
Общая площадь - 260 кв.м.
1 этаж 86 квадратных метров.
2 этаж 86 квадратных метров.
Цоколь 86 квадратных метров.
Заведены все коммуникации- газ, свет, вода.
Дом кирпичный, крыша металлочерепица, перекрытия железобетонные, двойные стеклопакеты, стены оштукатурены по маякам. Фундамент ленточный глубиной 1. 50 м, ширина 0,5 м.
Двухконтурный котел BAXI, центральное водоснабжение, канализация местная.
ПРОДАН


