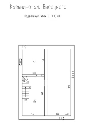
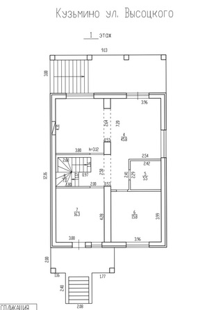
2-Х ЭТАЖНЫЙ КИРПИЧНЫЙ ДОМ (плюс ЦОКОЛЬНЫЙ ЭТАЖ), 280 кв.м. на участке 800 кв.м.
Адрес: Брянская обл, Брянский р-н, п. Кузьмино, улица Высоцкого.
Дом 2018 года постройки. Общая площадь - 212 кв.м. Земля - 800 кв.м. Дом и земля в собственности.
Два этажа плюс цокольный этаж, перекрытия железобетонные. Огороженная территория.
Фундамент блочный. Стены облицовочный кирпич. Крыша металлочерепица.
Все коммуникации: газ, свет, вода в доме. Канализация местная.
Стоимость - 8 500 000 руб.
тел. 8-910-333-39-44 Александр
![]() |
![]() |
![]() |
|
![]() |
![]() |
|
ПРОДАН




