2-Х ЭТАЖНЫЙ КИРПИЧНЫЙ ДОМ (134 КВАДРАТНЫХ МЕТРА)
![]() |
![]() |
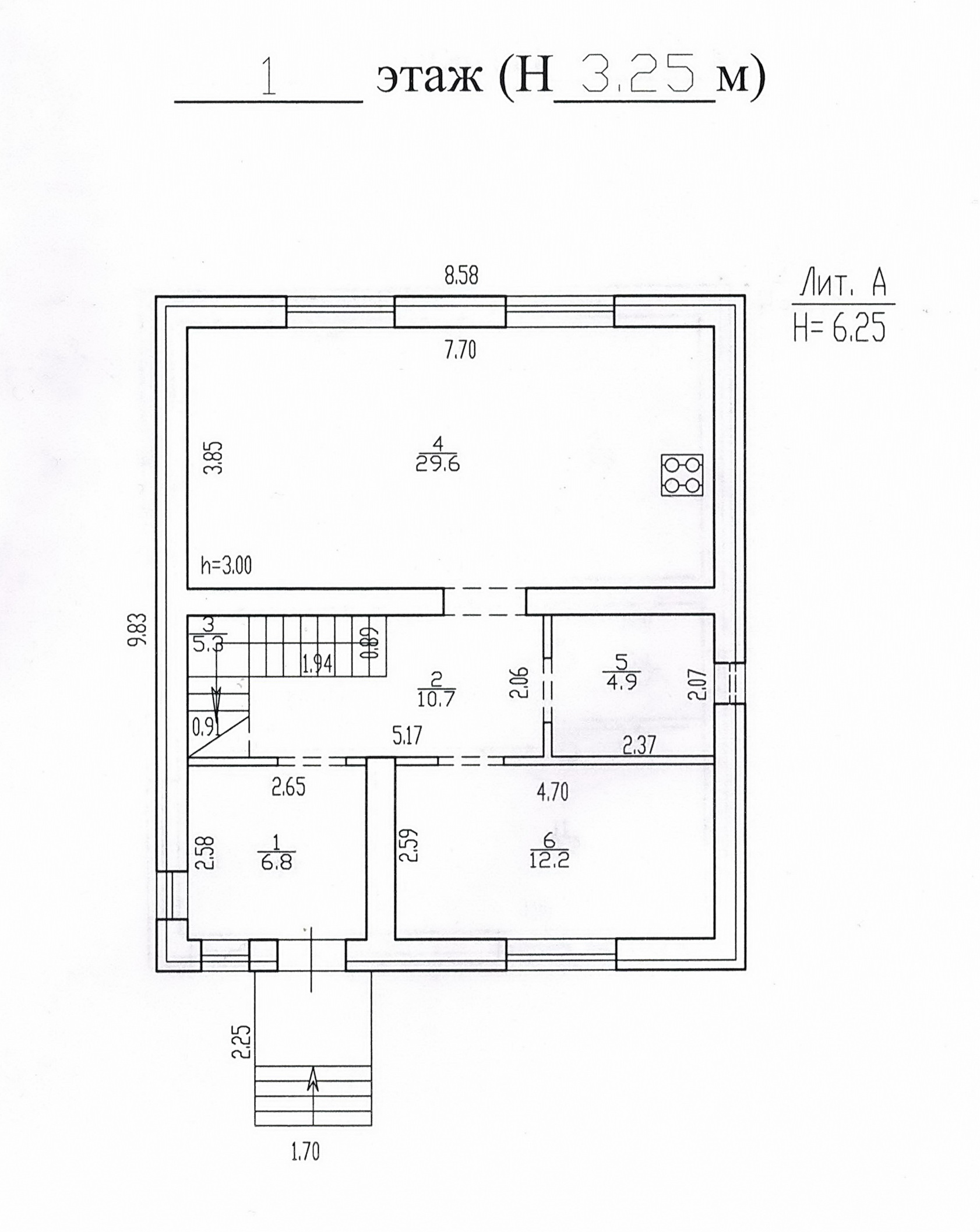
Новый 2-х этажный кирпичный дом на участке 8,5 соток в пос. Толмачево, ул. Новая (строящийся коттеджный поселок). Общая площадь дома – 134 кв.м, в т.ч.: 1 этаж – 69,5 кв.м.; 2-й этаж – 64,5 кв.м.
Стеклопакеты, отопление – газовый котел Bоsch; электричество, вода в доме, канализация местная. 1-й этаж: кухня-студия (29,6 кв.м.), санузел, 1 комната, прихожая, коридор; 2-й этаж: санузел, 4 комнаты, коридор . Стены выровнены по маякам, оштукатурены и ошпаклеваны под покраску или поклейку обоев. Установлена лестница на 2-й этаж. Территория огорожена.
Стоимость – ПРОДАН
Елена. 8-919-191-90-51
![]() |
![]() |
|
![]() |
![]() |
![]() |
![]() |
![]() |
![]() |
![]() |










